Thi công xây dựng nhà chị Thư (KDC Nam Long - TP HCM)

Lấy Uy Tín làm nền tảng - Lấy Chất Lượng để cạnh tranh - Lấy sự bằng lòng để làm động lực phát triển

hotline: 0977923779

Thi công xây dựng nhà chị Thư (KDC Nam Long - TP HCM)
02/12/2025 11:02 PM 54 Lượt xem

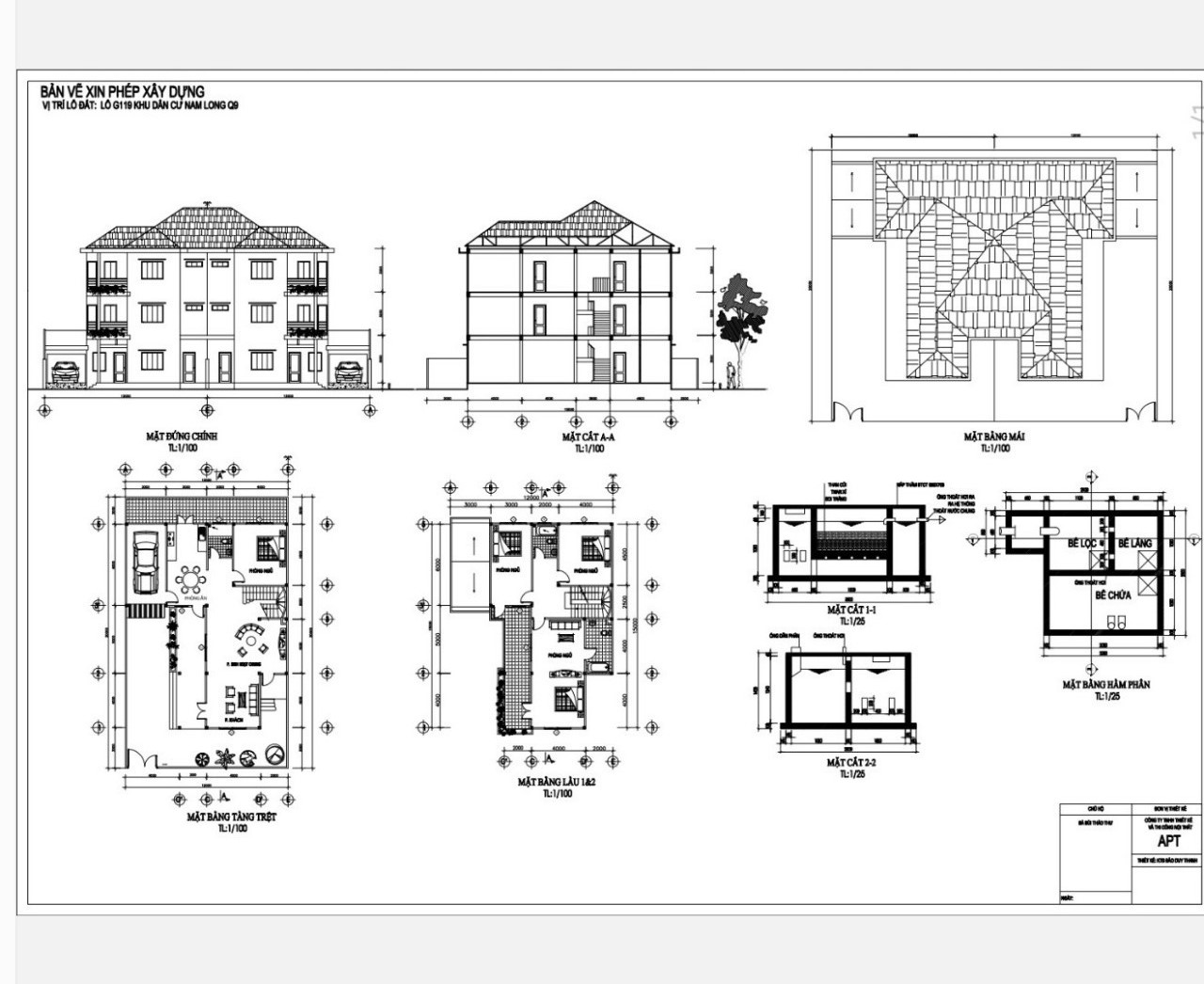
    Triển khai KS xây dựng Biệt Thự Gia Đình

    ✧✧Thông Tin Dự Án✧✧

    Khách hàng: Chị Thư

    • Diện tích sàn xây dựng : 470m2
    • Thiết kế: 1 trệt 2 lầu 1 tum sân thượng.
    • Địa chỉ: KDC Nam Long - TP HCM
    • Tiến độ: 6 tháng

    ✧✧Hình ảnh thực tế✧✧

    Công ty chúng tôi xin chân thành cảm ơn.
    ------------------------------ 
    👉 Công ty TNHH Thiết Kế Xây Dựng TDCONS là công ty thiết kế, xây dựng và hoàn thiện nội thất nhà phố, biệt thự và căn hộ uy tín tại TP.HCM và các tỉnh lân cận như: Tây Ninh, Bình Phước, Bình Dương, Đồng Nai, Vũng Tàu, Long An, Bến Tre. 
    👉 Quý khách có nhu cầu về Xây dựng nhà ở hay thiết kế thi công nội thất tại HCM và các tỉnh lân cận vui lòng liên hệ ngay 0️⃣9️⃣7️⃣7️⃣9️⃣2️⃣3️⃣7️⃣7️⃣9️⃣ để được TDCONS tư vấn chi tiết. 
    ☎️ Hotline 24/7: 0️⃣9️⃣7️⃣7️⃣9️⃣2️⃣3️⃣7️⃣7️⃣9️⃣ 
    📱 Website: www.tdcons.com 
    📲Email: cskh.tdcons@gmail.com 
    CÔNG TY TNHH THIẾT KẾ XÂY DỰNG TDCONS 
    🏨TRỤ SỞ : Số 26 Đường số 9 KDC Vạn Phúc, TP Thủ Đức, TP.HCM. 
    🏨VP HCM : Số 26 Đường số 9 KDC Vạn Phúc, TP Thủ Đức, TP.HCM. 
    🏨VP Quảng Ngãi : Chợ Mới, Xã Tịnh Hà, Huyện Sơn Tịnh, Tỉnh Quảng Ngãi. 
    🏨XƯỞNG: 39/11D Đường 102, Phường TNP A, TP Thủ Đức, TPHCM.