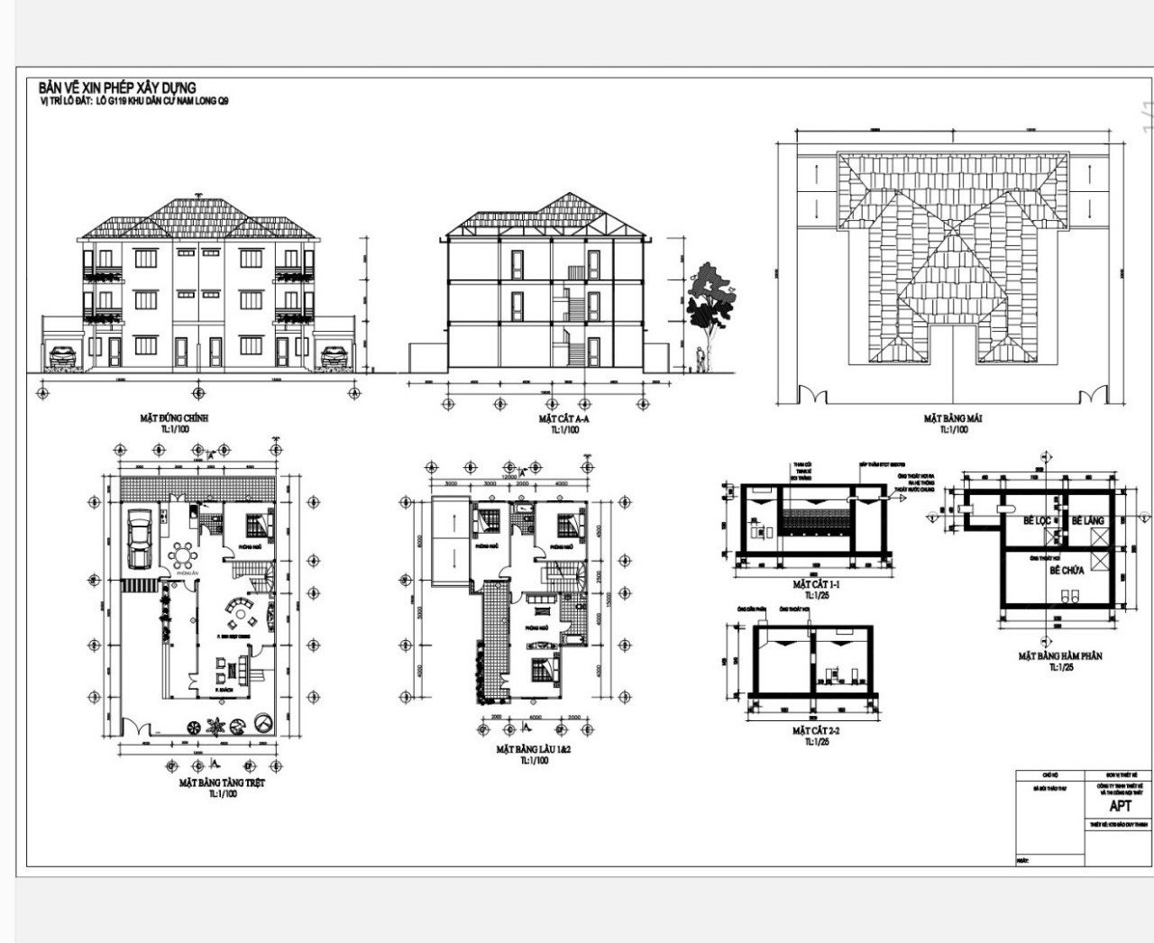
Thi công nhà chị Thư ở KDC Nam Long - TP HCM

Lấy Uy Tín làm nền tảng - Lấy Chất Lượng để cạnh tranh - Lấy sự bằng lòng để làm động lực phát triển

hotline: 0977923779

Thi công nhà chị Thư ở KDC Nam Long - TP HCM

  • 260

🏘️Triển khai thi công hạng mục thép sàn trệt. Nhà Ở Dân Dụng 4 Tầng TP Thủ Đức .

Khách hàng: Chị Thư

  • Diện tích sàn xây dựng : 470m2
  • Thiết kế: 1 trệt 2 lầu 1 tum sân thượng.
  • Địa chỉ: KDC Nam Long - TP HCM
  • Tiến độ: 6 tháng

Công ty chúng tôi xin chân thành cảm ơn.

TDCONS "UY TÍN CHẤT LƯỢNG TẠO NÊN GIÁ TRỊ"

------------------------------ 

👉 Công ty TNHH Thiết Kế Xây Dựng TDCONS là công ty thiết kế, xây dựng và hoàn thiện nội thất nhà phố, biệt thự và căn hộ uy tín tại TP.HCM và các tỉnh lân cận như: Tây Ninh, Bình Phước, Bình Dương, Đồng Nai, Vũng Tàu, Long An, Bến Tre. 

👉 Quý khách có nhu cầu về Xây dựng nhà ở hay thiết kế thi công nội thất tại HCM và các tỉnh lân cận vui lòng liên hệ ngay 09 779 23 779 để được TDCONS tư vấn chi tiết. 

✧✧Hình ảnh công trình✧✧

Công trình khác